Instituto BAI
Francisco MangadoPara albergar el Instituto Nacional de Industrialización y Robótica de la Construcción se ha previsto la rehabilitación de dos naves existentes situadas en un lugar estratégico en términos de conexiones urbanas e interurbanas, cerca de la Universidad Pública de Navarra y justo en frente de la futura Ciudad Circular y Polo Tecnológico de Navarra.
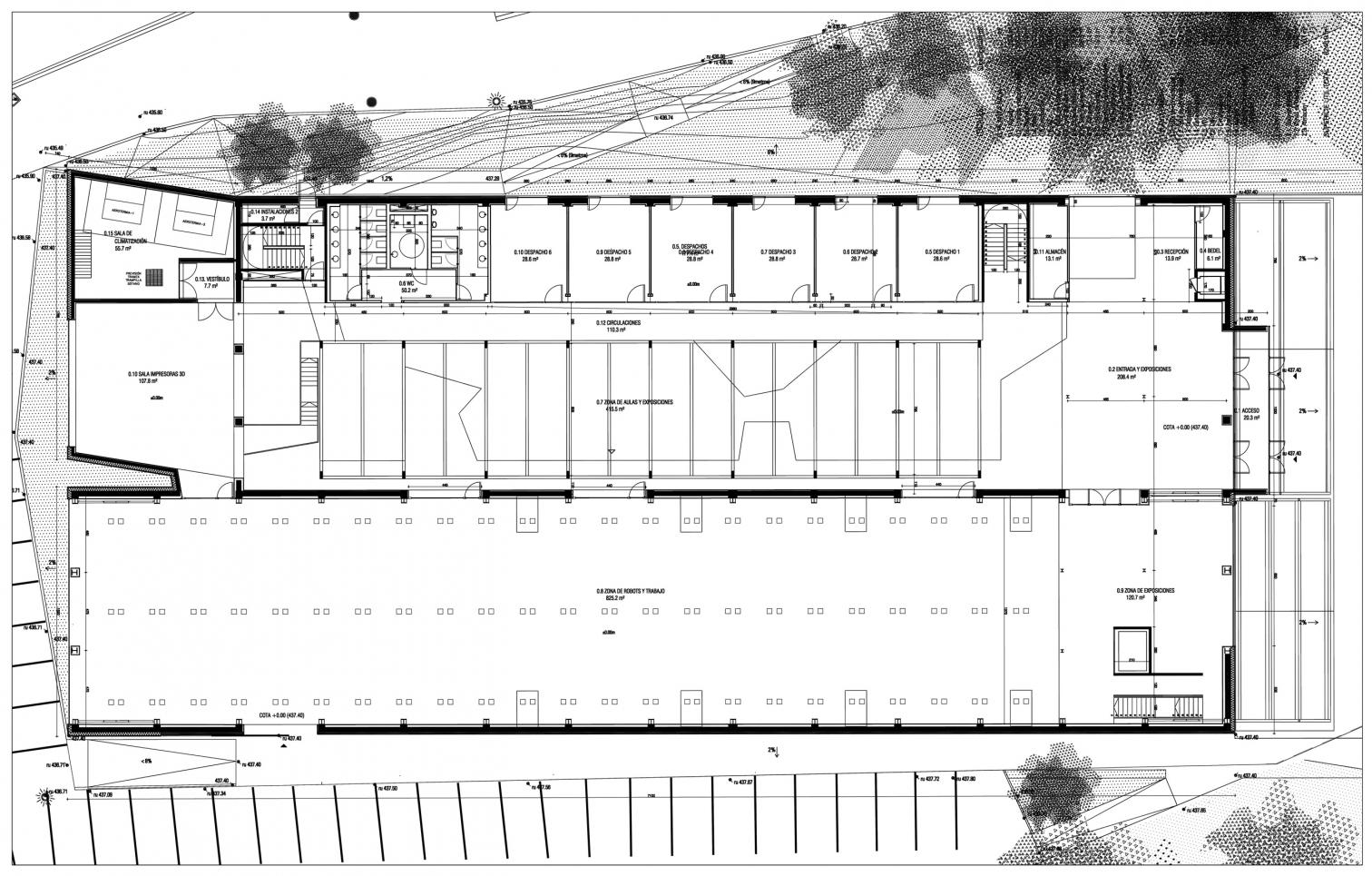
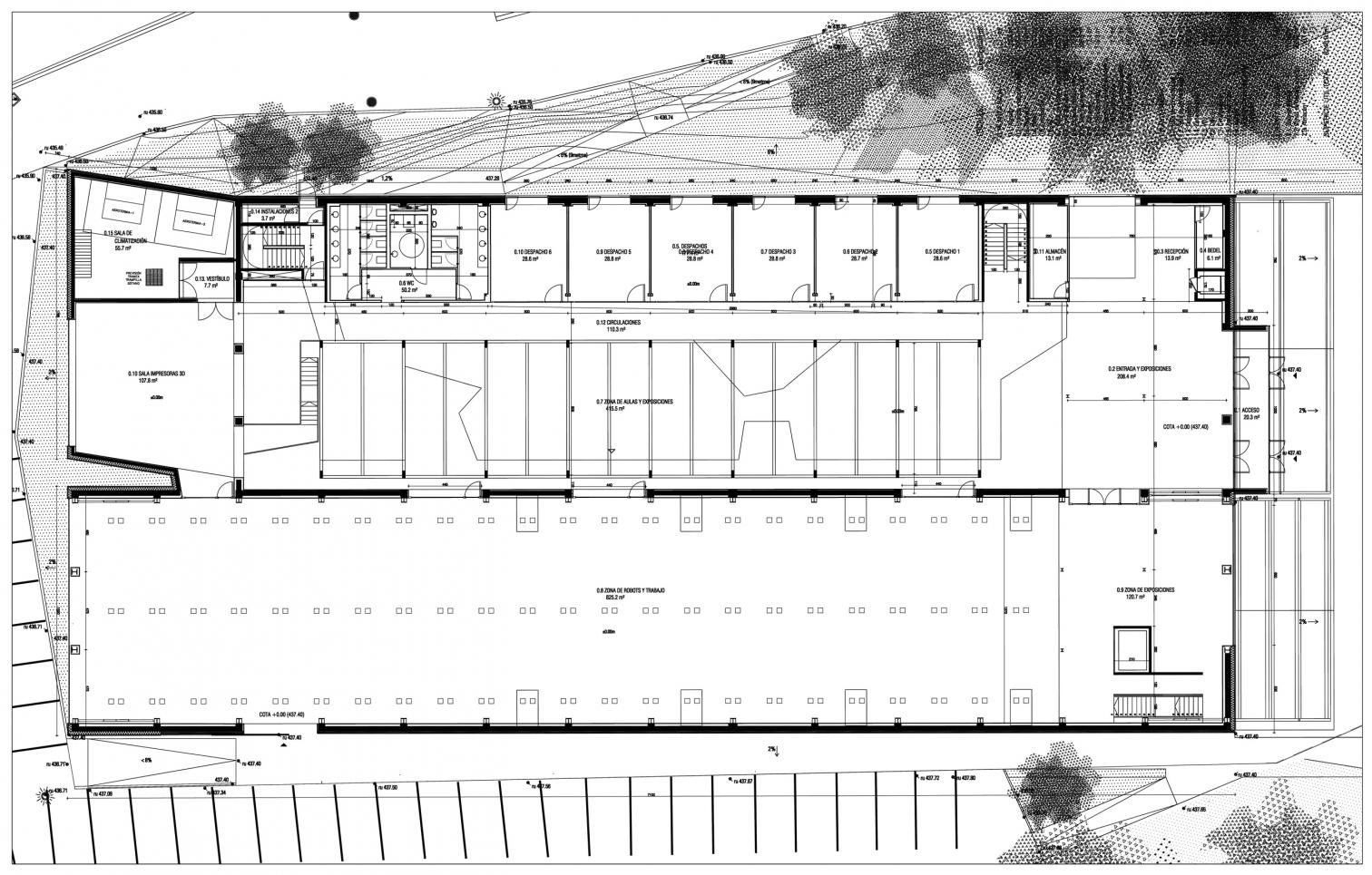
La necesidad de contar con dos áreas diferenciadas (una para la construcción de prototipos, otra para los despachos y talleres de proyecto) pero que han de funcionar con permanente dependencia, así como el hecho de que los espacios han de resultar lo más adaptables posibles y sin muchas divisiones interiores, se adapta perfectamente a la idea de utilizar dos naves como las que son objeto de este proyecto arquitectónico.

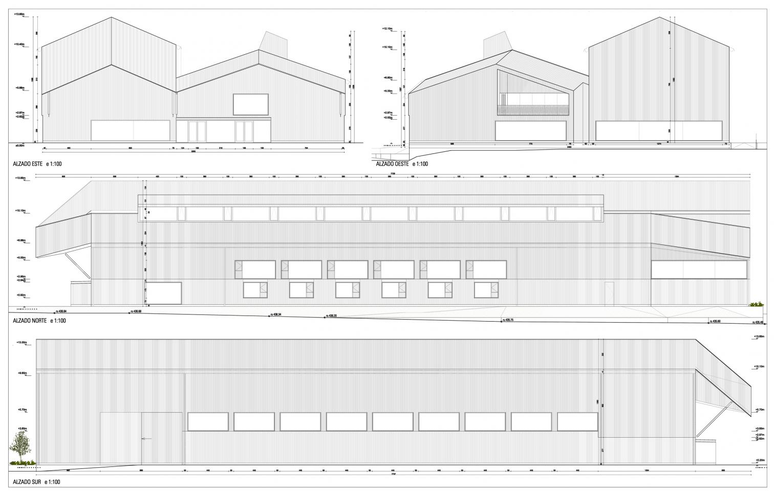
Las dos edificaciones preexistentes sobre las que actuamos han tenido usos variados a lo largo del tiempo, siendo utilizadas básicamente de almacén de transporte y en algún momento con fines productivos. Su estado actual, en términos constructivos, es relativamente razonable con una estructura portante vertical de hormigón armado en ambos casos. La cubierta en la nave derecha, la más baja, es de hormigón armado con tensores metálicos, y la de la izquierda, menos valiosa que la anterior, está formada por unas sencillas cerchas metálicas igualmente atirantadas con tensores metálicos. Las fachadas son de ladrillo enfoscado de medio pie, con poco valor constructivo por lo que en su mayor parte se reducen en el proyecto a ser base de los nuevos aislamientos térmicos. Se realizan algunas demoliciones de altillos y elementos añadidos que no aportan nada a los usos requerido.

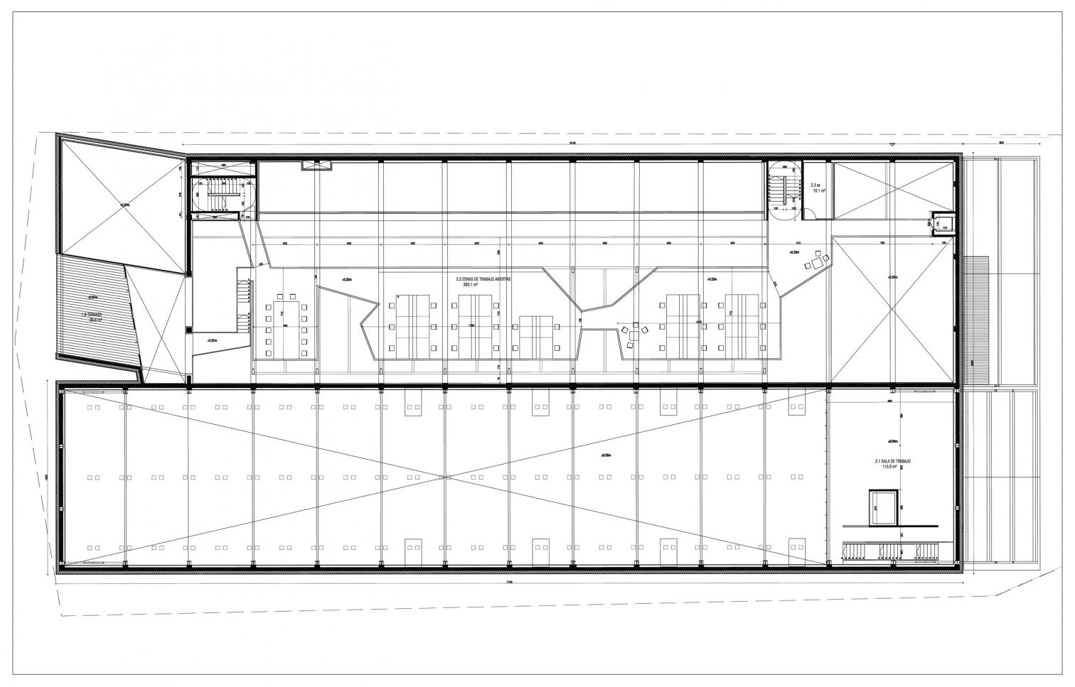
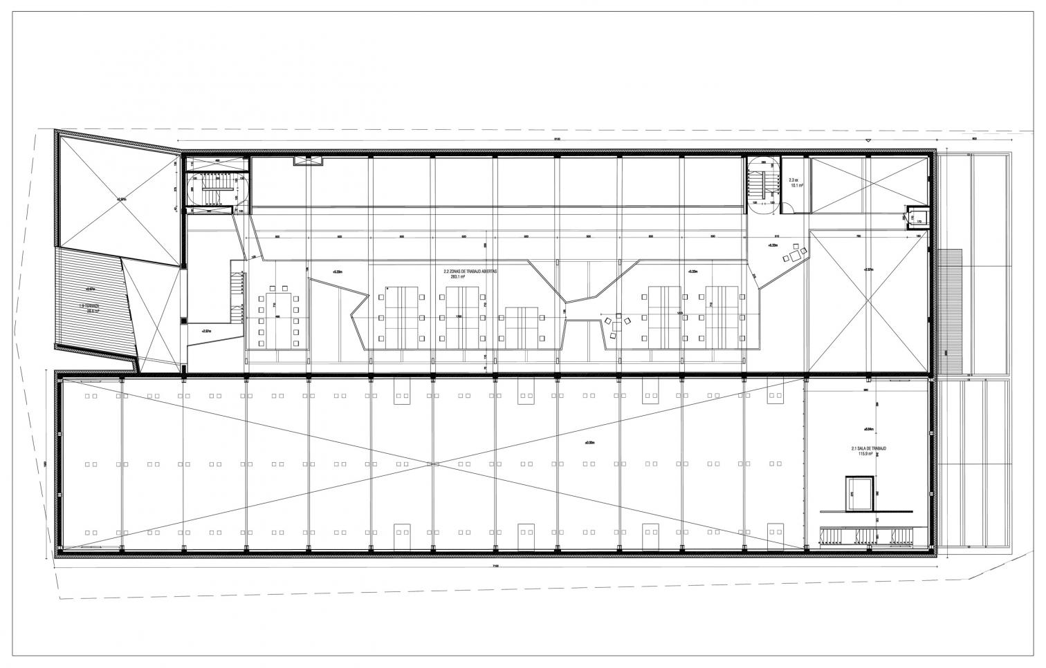
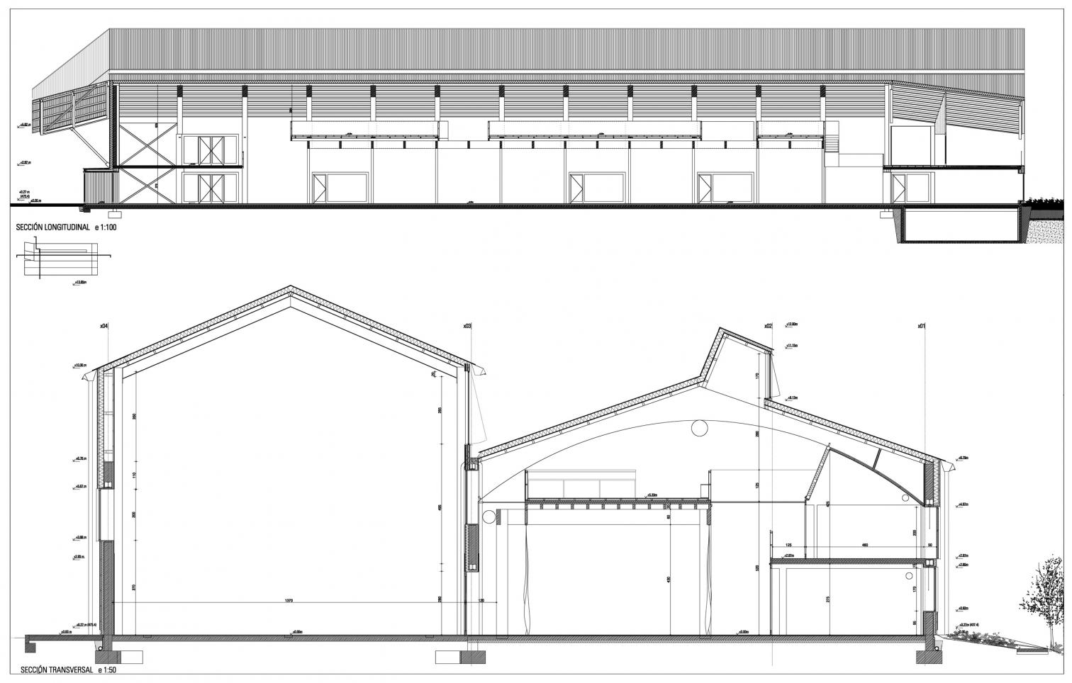
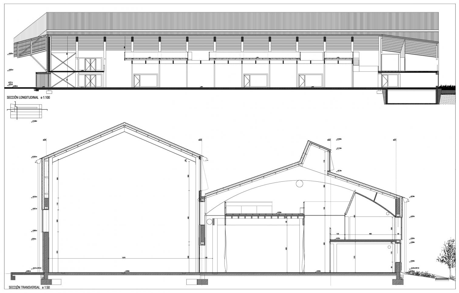
La intervención más significativa en términos estructurales es la que implica la elevación de la cubierta de la nave izquierda al objeto de poder obtener la altura que permitirá la disposición del puente grúa que sujete los robots del área de investigación y desarrollo. Se mantiene no obstante en su posición las vigas de hormigón armadas de la estructura de cubierta de la nave derecha, sustituyendo lo que es la cubierta por una estructura más liviana y por una cubierta formada básicamente por chapa y aislamiento. Igualmente se procede al refuerzo de los pilares de hormigón existentes con elementos metálicos. El resto de la intervención afecta a los cerramientos existentes y a las soleras, reforzando los aspectos mecánicos de las mismas así como su aislamiento que en este momento es inexistente. Las fachadas y las cubiertas quedan revestidas bien con chapa prelacada o con madera pintada manteniendo su aspecto industrial. Obviamente las nuevas fachadas implican la apertura de huecos en las que hoy son ciegas al objeto de proveer de luz a los nuevos usos del interior.

Una vez rehabilitados los volúmenes con los criterios descritos, la intervención en el interior sigue el criterio funcional de dejar los espacios lo más libres posible. Así ocurre en la nave que se dedicará a investigación y desarrollo en la que únicamente se propone, junto a la entrada principal del edificio tres niveles elevados que contendrán los talleres y almacenes de maquetas, dejando el resto de la nave libre para el manejo de los robots. En la nave derecha se propone una construcción ligera con estructura de madera pintada que, a modo de muebles, contendrán los distintos usos como aulas, talleres de proyectos, despachos y exposiciones, todo ello pensando en la máxima integración de todos los espacios cuando por las circunstancias sea requerido. Estas estructuras tendrán su propio soporte estructural de madera pintada siendo industrializadas y trasladadas posteriormente al interior para su posterior montaje, resultando coherentes con la idea implícita en la propia actividad del Instituto el cual iniciara su actividad con la industrialización y la robótica aplicada a la arquitectura. Se pretende que en la segunda fase del proyecto, la que afecte al interior sean los propios alumnos los que realicen el proyecto y la ejecución.








Estado actual de las naves

Estado actual de las naves
- Tipología Sede / oficina
- País España